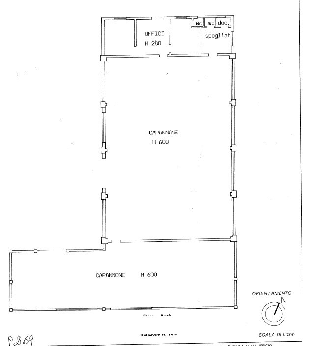
Nibbiola, 10 km from Novara, for sale a warehouse of 856 m2 inserted in a plot of land of 3900 m2. In the building we find a residential house of about 90 m2 on the first floor with independent access, office and storage rooms on the ground floor, and two equipped bathrooms. Outside a low building and a shed for hobby use, all regularly registered. There is the possibility of building or expanding the existing one for another 1000 square meters. Access from the road is convenient and easy for all types of means of transport, even when maneuvering. Free immediately











