16/09/2024
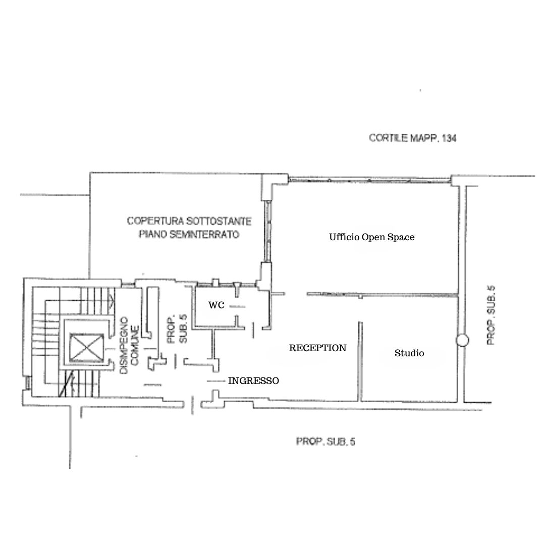
Milano, in zona comoda per il centro e per la tangenziale, proponimao in locazione un ufficio al piano terzo, composto da ingresso in ampio locale dove poter realizzare una reception oppure delle postazioni di lavoro, ufficio open space adatto a sala riunioni , in alternativa divisibile in due uffici separati, ed un ulteriore studio\sala riunioni\sala cucina a secondo delle necessità del conduttore. In allegato trovate la planimetria per valutare gli spazi. L'unità è dotata di bagno ed antibagno, e sistema di climatizzazione caldo\freddo che verrà installato a breve. Euro 2.000,00 spese condominiali incluse







